3 Bedrooms House Plan - ID 13404
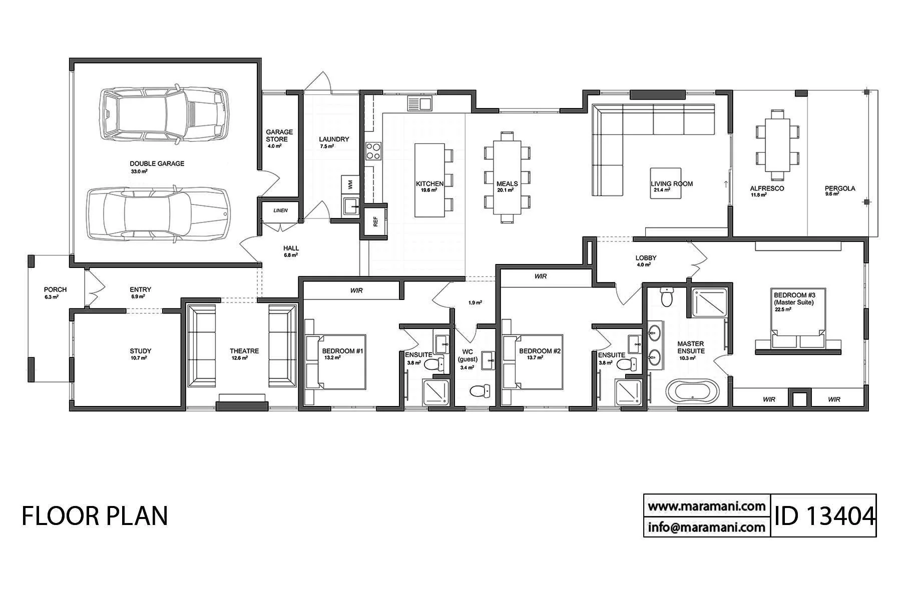
Modern urban planning tends to maximise land use by having long and narrow plots as this reduced the area required for access roads. If your plot happens to fall into this category then we have the perfect plan for you which maximises the use of this type of plot. A narrow front facade contains a two port garage, an entry and a study. These front facing spaces are followed by an open plan kitchen, dining and living room on one side with the bedrooms on the other. Included in this 3 bedrooms house plan specifically designed for confined/narrow plots plan is a theatre, alfresco, laundry and garage storage space. A well designed and compact layout for your narrow plot.
Plan Details
| Features | Drawings List |
| Stories: 1 Bedroom: 3 Self-contained rooms: 3 Toilets: 4 Kitchen: 1 Dining room: 1 Living room: 1 Theatre: 1 Office: 1, Verandah: 3 Laundry: 1 Store: 1 Alfresco: 1 Porch: 1 Garage: 2 cars |
Foundation Plan *Drawings delivered in PDF and DWG Format |




Description
Modern urban planning tends to maximise land use by having long and narrow plots as this reduced the area required for access roads. If your plot happens to fall into this category then we have the perfect plan for you which maximises the use of this type of plot. A narrow front facade contains a two port garage, an entry and a study. These front facing spaces are followed by an open plan kitchen, dining and living room on one side with the bedrooms on the other. Included in this 3 bedrooms house plan specifically designed for confined/narrow plots plan is a theatre, alfresco, laundry and garage storage space. A well designed and compact layout for your narrow plot.
Plan Details
| Features | Drawings List |
| Stories: 1 Bedroom: 3 Self-contained rooms: 3 Toilets: 4 Kitchen: 1 Dining room: 1 Living room: 1 Theatre: 1 Office: 1, Verandah: 3 Laundry: 1 Store: 1 Alfresco: 1 Porch: 1 Garage: 2 cars |
Foundation Plan *Drawings delivered in PDF and DWG Format |





















