3 Bedroom House Plan - ID 23402
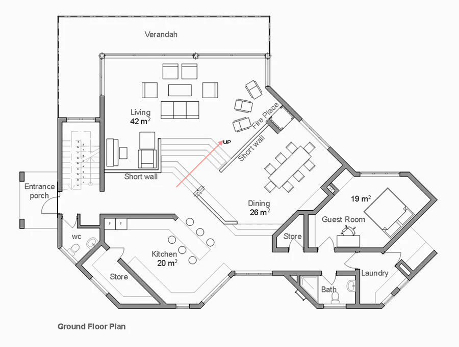
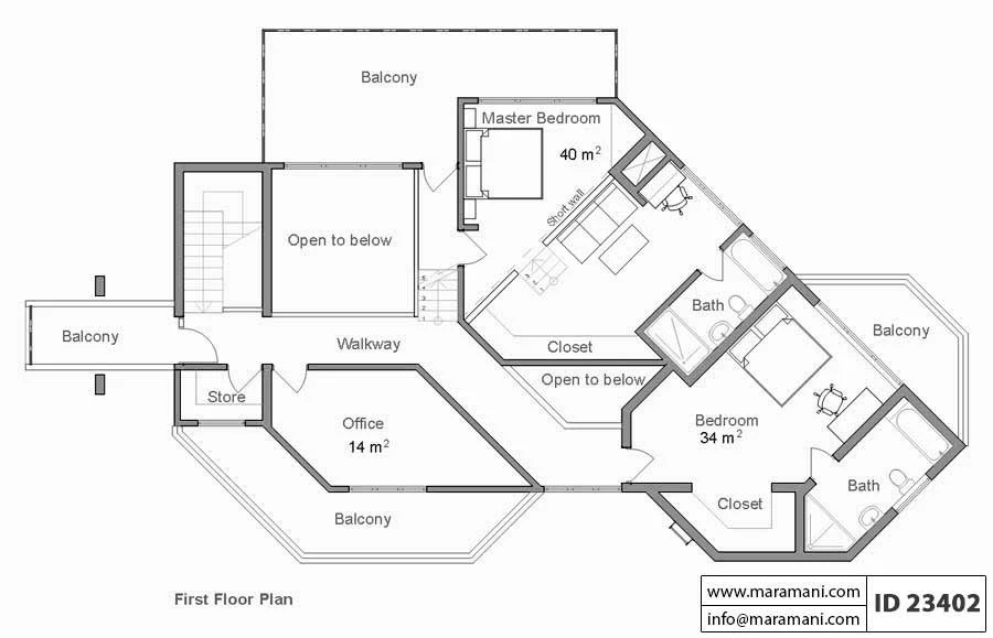
A 3 bedroom home specifically designed for a very steeply inclined terrain. The plan contains multiple levels on each floor connected by beautifully crafted staircases making the interior a very intricately crafted and cozy space. A large elevated terrace connects directly to the living room with another secondary balcony with public access that also connects to the master bedroom. A double-sided fireplace lets the family warm themselves either from the living room or from the dining area. Definitely a work of art for a very specific type of terrain. You would never regret spending on this steep slope house plan with 3 bedrooms that offers an easy and efficient solution to challenging sloped lots.
Plan Details
| Features | Drawings List |
| Stories: 2 Bedroom: 3 Self-contained rooms: 2 Toilets: 4 Kitchen: 1 Dining room: 1 Living room: 1 Balcony: 4 Verandah: 3 Office: 1 Laundry: 1 Store: 3 |
Foundation plan *Drawings delivered in PDF and DWG Format |





Description
A 3 bedroom home specifically designed for a very steeply inclined terrain. The plan contains multiple levels on each floor connected by beautifully crafted staircases making the interior a very intricately crafted and cozy space. A large elevated terrace connects directly to the living room with another secondary balcony with public access that also connects to the master bedroom. A double-sided fireplace lets the family warm themselves either from the living room or from the dining area. Definitely a work of art for a very specific type of terrain. You would never regret spending on this steep slope house plan with 3 bedrooms that offers an easy and efficient solution to challenging sloped lots.
Plan Details
| Features | Drawings List |
| Stories: 2 Bedroom: 3 Self-contained rooms: 2 Toilets: 4 Kitchen: 1 Dining room: 1 Living room: 1 Balcony: 4 Verandah: 3 Office: 1 Laundry: 1 Store: 3 |
Foundation plan *Drawings delivered in PDF and DWG Format |





















